Продается Студия ул. Пожарского 8 , в ЖК Форт .
Современные квартиры в новых жилых комплексах
Продается Студия ул. Пожарского 8 , в ЖК Форт .
Новый 14-этажный кирпично-монолитный дом . Срок сдачи 4 кв. 2027 года

В наличии Студия
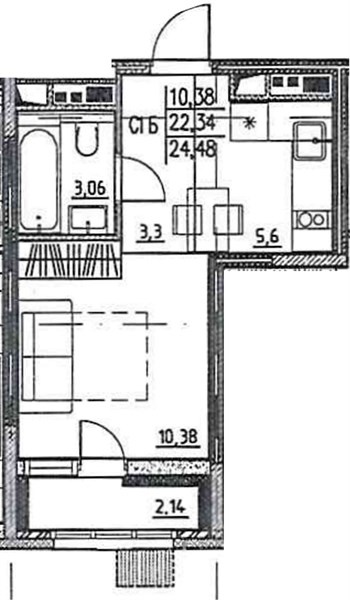
Общая площадь 24,48 кв.м. Жилая площадь 10,38 кв.м. Кухня 5,6 кв.м. Лоджия 2,14 кв.м.

Черновая отделка .
ЖК "Форт" , предлагает своим резидентам среду, где природная красота сочетается с премиальным благополучием. Функциональные игровые зоны распределены с учётом возрастных групп. Спортивная зона включает в себя площадки для стритбола, воркаута и паркура.

Крышная котельная ;Функциональные зоны отдыха ; Двор без машин ; Развитая инфраструктура ;Ландшафтное озеленение.


ВСЕ виды оплаты . Семейная ипотека .Сертификаты .Рассрочка.
Поможем с одобрением Вашей ипотеки.
Ссылка на объявление: https://svetlyi-grad58.ru/sale/buildings/53789
3 000 000
Виктория


Пензенская область, Пенза, Железнодорожный район, улица Пожарского, д 8
redeemДанный объект можно приобрести в ипотеку

Информация об объекте

Количество комнатСтудия Этаж8 Площадь общая24.48 Площадь жилая10.38 Площадь кухни5.6 Лоджий1 Совмещенных санузлов1 ОтделкаЧерновая

Информация о доме

Название ЖКЖК «Форт» Год сдачи2027 КварталIV Тип домаМонолитный Этажей в доме14 Грузовых лифтов1 Пассажирских лифтов1 ПарковкаПодземная

Цена и условия сделки

Тип продажиДоговор долевого участия (214-ФЗ)