Продается 2 комнатная квартира ул. Баталина 29 . ЖК Флагман , р-н ГПЗ .
Продажа квартир на любой вкус и бюджет
Продается 2 комнатная квартира ул. Баталина 29 . ЖК Флагман , р-н ГПЗ .

Квартира в кирпичном доме 2022 года постройки, с шикарным панорамным видом на р. Сура.
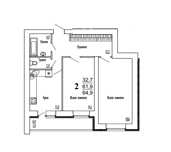
Площадь общая 64,9 кв.м. , жилая 32.7 кв.м. , кухня 11 кв.м. Высота потолков - 2,7 м. Панорамная лоджия.

В квартире выполнено: Стяжка пола, штукатурка стен, внутриквартирные перегородки, лоджии с панорамным остеклением, электроразводка. Установлены розетки и выключатели , входная мет. дверь. Огороженная территория. Современный холл и лестничная площадка. Детские и спортивные площадки.

Новый жилой комплекс расположился в одном из самых зеленых районов Пензы, с развитой инфраструктурой. В шаговой доступности: Сетевые магазины, Лента. Детские сады Школы . Остановка общественного транспорта.

Семейная ипотека. Любая форма оплаты.
Ссылка на объявление: https://svetlyi-grad58.ru/sale/saleapartments/164555
6 160 000
Виктория


Пензенская область, Пенза, улица Баталина, д 29 redeemДанный объект можно приобрести в ипотеку

Информация об объекте

Количество комнат2-к квартира Этаж14 Площадь64.9 Жилая площадь32.7 Площадь кухни11 Лоджия1 Раздельных санузлов1 РемонтОтсутствует

Информация о доме

Название ЖКФлагман Год постройки2022 Тип домаКирпичный Этажей в доме18 Лифты грузовые1 Лифты пассажирские1 ПарковкаНаземная