Продается 3 комнатная квартира улица Генерала Глазунова 6 , в ЖК «Арбековская застава». , р-н Арбеково, ДОМ СДАН.
Продажа квартир на любой вкус и бюджет
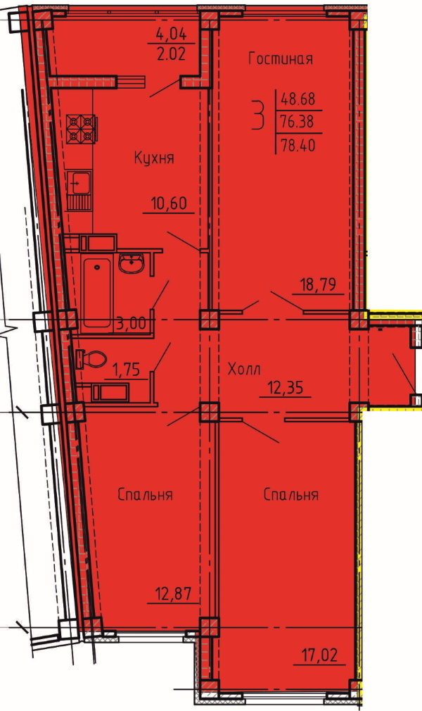
Продается 3 комнатная квартира по ул. Генерала Глазунова 6 , в ЖК «Арбековская застава». , р-н Арбеково, ДОМ СДАН .
Квартира в 18 этажном панельном доме , класса энергоэффективности дома A +

Общая площадь 78,4 м2. Жилая площадь 48,68 м2. Кухня 10,6. м2.

В квартире выполнена КАЧЕСТВЕННАЯ ЧЕРНОВАЯ ОТДЕЛКА:
- сделана стяжка пола,
- отштукатурены стены,
- устанавливается вся сантехника и электропроводка,
- металлическая входная дверь.
Благоустроенная придомовая территория дома: спортивное оборудование , скалолаз, турник, волейбольная площадка, теннисный стол, баскетбольный щит , игровой комплекс, диван-качели, лабиринт.Развитая инфраструктура района : магазины , садик, школа.

ОДОБРЕНИЕ ВАШЕЙ ИПОТЕКИ, без посещения банка.
Ипотека с гос.поддержкой . Семейная ипотека. Льготная ипотека .

Для Вас самые выгодные условия приобретения!
Ссылка на объявление: https://svetlyi-grad58.ru/sale/saleapartments/179122
5 990 000
Виктория


Пензенская область, Пенза, улица Генерала Глазунова, д 6 redeemДанный объект можно приобрести в ипотеку

Информация об объекте

Количество комнат3-к квартира Этаж10 Площадь78.4 Жилая площадь48.68 Площадь кухни10.6 Лоджия1 Раздельных санузлов1

Информация о доме

Название ЖКАрбековская Застава Год постройки2022 Тип домаПанельный Этажей в доме18 Лифты грузовые1 Лифты пассажирские1