Продается 3 комнатная квартира ул. Яшиной 2 , С РЕМОНТОМ в ЖК «ЛУГОМЕТРИЯ»
Продажа квартир на любой вкус и бюджет
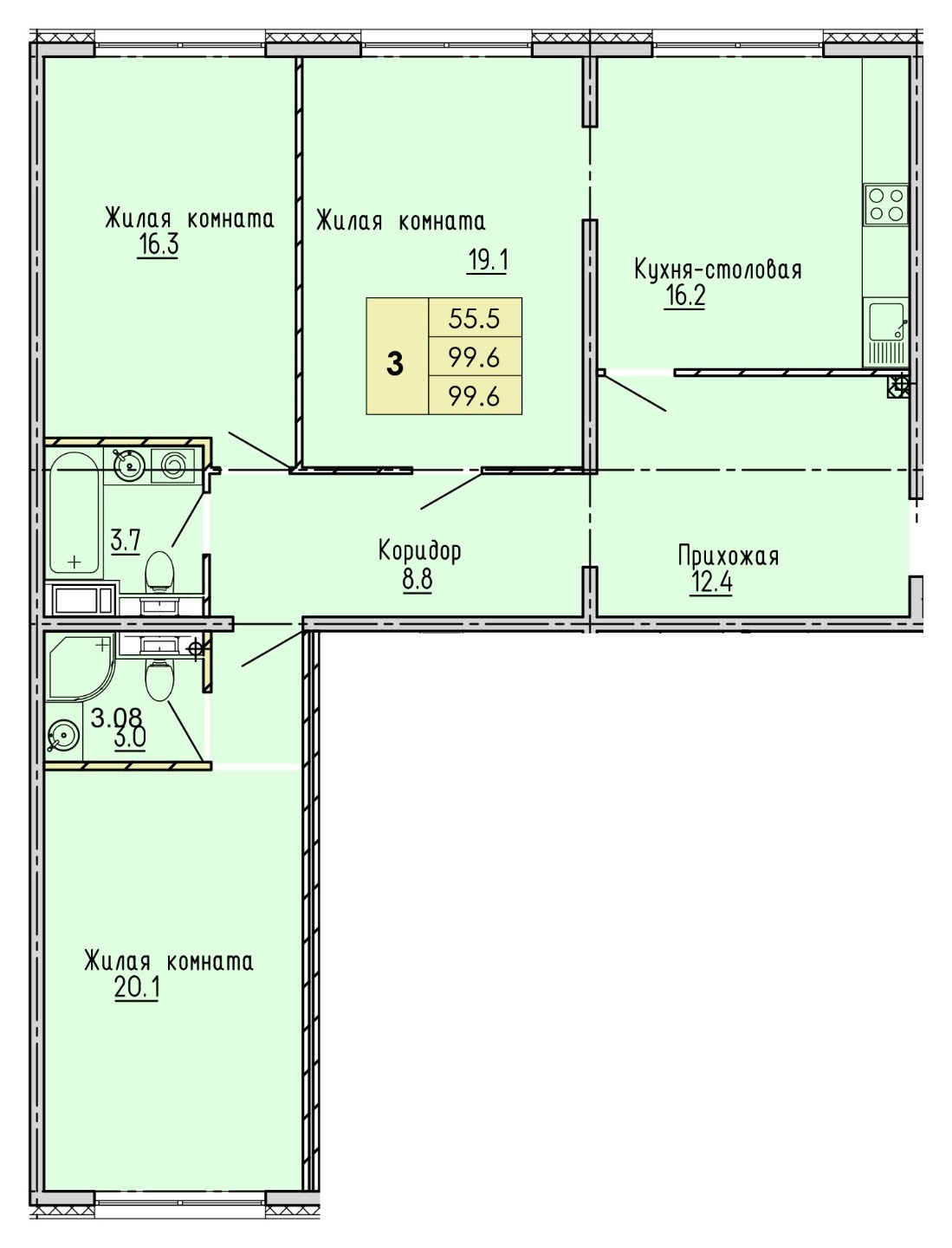
Продается 3 комнатная квартира ул. Яшиной 2 , С РЕМОНТОМ в ЖК «ЛУГОМЕТРИЯ» , район Арбеково . Монолитно-каркасный 18 этажный дом . ДОМ СДАН.

Общая площадь 99,6м2. Жилая площадь 55,5м2. Кухня 16,2м2 .
С/у раздельный .

Квартира с готовым ремонтом: обои под покраску, ламинат 33 класса, натяжные потолки с точичными светильниками, керамическая плитка в санузле Kerama Marazzi, установлена вся сантехника, межкомнатные качественные двери, кухонный гарнитур с посудомоечной машиной, современный ремонт, светлый или серый оттенок пластика для фасада кухни великолепно сочетается с деревом, фурнитура для кухни элитного класса BLUM, встраиваемая техника, встроенная вытяжка, варочная панель.

Все виды оплаты: наличные, ипотека, любые сертификаты.

ОДОБРЕНИЕ ВАШЕЙ ИПОТЕКИ , без посещения банка. Ипотека с гос.поддержкой . Льготная ипотека .

ДЛЯ ВАС САМЫЕ ВЫГОДНЫЕ УСЛОВИЯ ПОКУПКИ !

Ссылка на объявление: https://svetlyi-grad58.ru/sale/saleapartments/179407
9 500 000
Виктория


Пензенская область, Пенза, Октябрьский район, улица Яшиной, д 2 redeemДанный объект можно приобрести в ипотеку

Информация об объекте

Количество комнат3-к квартира Этаж12 Площадь99.6 Жилая площадь55.5 Площадь кухни16.2 Лоджия1 Раздельных санузлов1 РемонтЕвро

Информация о доме

Название ЖКЛугометрия Год постройки2023 Тип домаПанельный Этажей в доме18 Лифты грузовые1 Лифты пассажирские1 ПарковкаНаземная